Porzione di bifamiliare in vendita

Sangano, Via Monte San Giorgio
€ 385.000
5 locali 5 locali
250 Mq 250 Mq
2 bagni 2 bagni

Porzione di bifamiliare in vendita

Sangano, Via Monte San Giorgio

Descrizione annuncio

SANGANO - VIA MONTE SAN GIORGIO

Sangano, in zona centrale , splendida villa libera su tre lati con giardino privato, inserita in un elegante contesto residenziale del 2003.

La proprietà si distingue per gli spazi generosi e la cura dei dettagli.
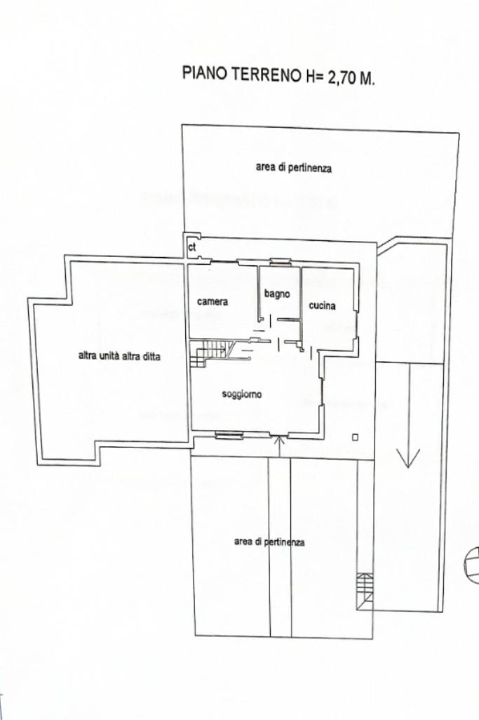
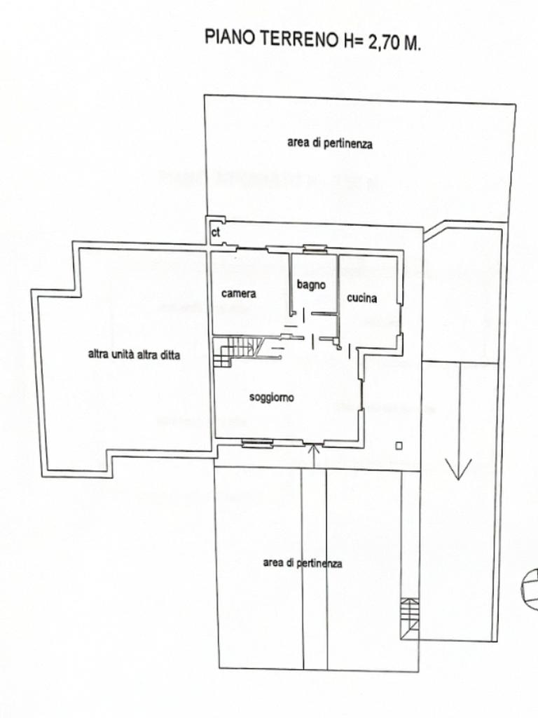
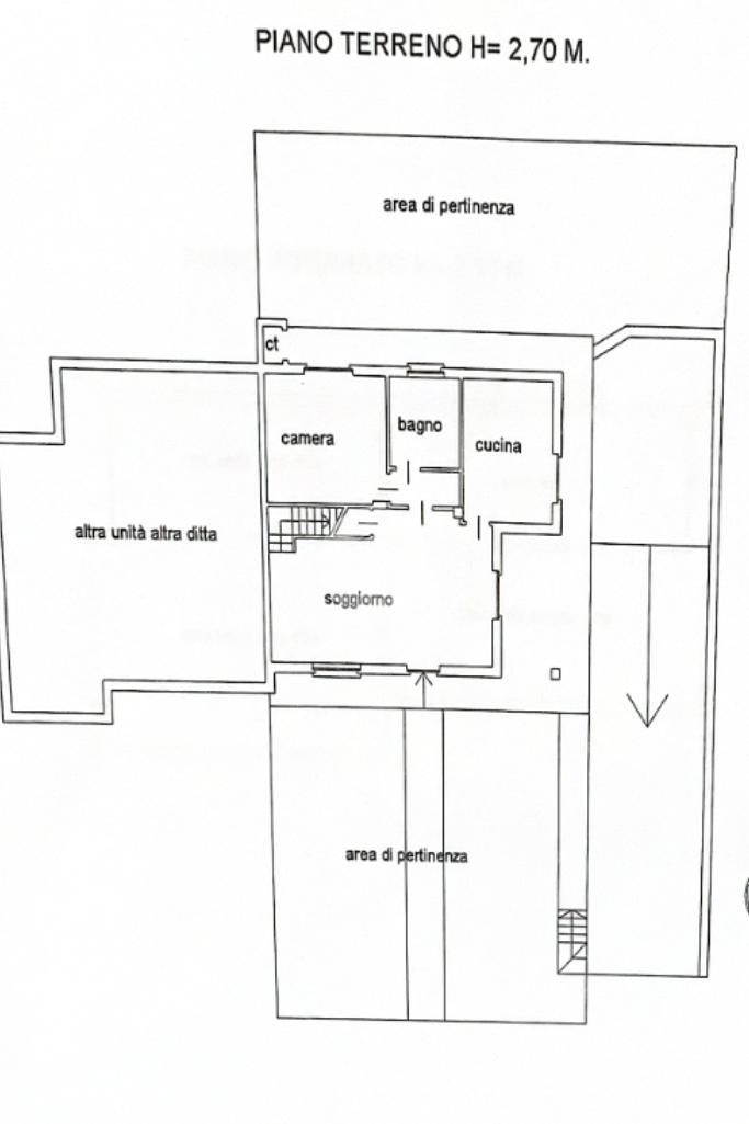
L’ingresso si apre su un ampio soggiorno , cucina abitabile, camera matrimoniale, bagno con vasca e comodo ripostiglio. Tutti gli ambienti del piano hanno uscita diretta sul giardino e sul terrazzo, ideale per pranzi all’aperto grazie alle tende da sole.

Al piano mansardato troviamo due camere con balcone, perfette come zona notte per figli, studio o area ospiti.

Il piano seminterrato offre una splendida tavernetta finestrata con camino a legna, oltre al box auto doppio, cantina e lavanderia.

Completano la proprietà due posti auto coperti .

Il riscaldamento è autonomo a metano con caldaia a condensazione.
E' presente un impianto fotovoltaico, l'antifurto volumetrico e perimetrale ed il cancello automatico.

Soluzione ideale per chi desidera indipendenza, comfort e tranquillità senza rinunciare alla comodità dei servizi del centro paese.

Mostra tutto

Nelle vicinanze

Trasporto pubblico Trasporto pubblico
Bruino (v. Susa/v. Cumiana)
Bruino (v. Susa/v. Cumiana)
380 m
Bruino (v. Torino/v. Cordero)
Bruino (v. Torino/v. Cordero)
470 m
Ricariche auto elettriche Ricariche auto elettriche
Campi Sportivi Villarbasse | EnelX
2,8 Km
Municipio di Piossasco | EnelX
2,9 Km
Scuole Scuole
Scuole
930 m
Liceo Vito Scafidi
1,2 Km
Scuola Media A. Einstein
1,5 Km
Farmacia Farmacia
Farmacia Santa Chiara
560 m
Farmacia Comunale 20
1,1 Km
Farmacia San Carlo
1,5 Km
Farmacia
1,7 Km
Ospedali Ospedali
Casa di cura Villa Serena
2,9 Km
Supermercati Supermercati
Ekom
810 m
CRAI
1,2 Km
Simply Market
1,3 Km
Negozi Negozi
Negozi
1,6 Km
Ristoranti Ristoranti
Pizza Rock
1,7 Km
Pari & Dispari
2,8 Km
Mostra tutto

Caratteristiche

Rif.:
61180211
Piano:
Su più livelli di 2
Totale piani:
2
Box:
1
Posti auto:
4
Balconi:
1
Mostra tutto
Prezzo Prezzo
€ 385.000
Rata mutuo Rata mutuo
€ 1.829 / mese
Proponi il tuo prezzoProponi il tuo prezzo

Classe Energetica

Questo immobile è esente da classe energetica
Anno di costruzione:
2003
Riscaldamento:
Autonomo
Tipo impianto:
A radiatori
Tipo alimentazione:
Metano

Ti interessa visionare l'immobile?

Fissa un appuntamento  Fissa un appuntamento

Richiedi informazioni

Clicca su Leggi per aprire l'informativa
* Questi campi sono obbligatori

Calcola il tuo mutuo

Semplice e senza impegno
Anticipo

( % )
Mutuo

( % )

pochi semplici passi

inserisci i tuoi dati
Questionario completato
Grazie per aver richiesto un appuntamento senza impegno con un nostro Consulente del Credito e Assicurativo.

Hai inserito correttamente tutti i dati necessari e a breve riceverai una e-mail con un link da convalidare per inviare i tuoi dati.
Affiliato
Studio Sangano Sas
P.zza Marco Matta, 5/2 10090 Sangano (TO)

Il nostro staff


  • Debora Regis
    Affiliata
P.zza Marco Matta, 5/2 10090 Sangano (TO)
Zona: Sangano-Bruino-Trana
Mostra su mappa
Orari: Lunedì 09.00-12.30, 15.00-20.00 Martedì 09.00-12.30, 15.00-20.00 Mercoledì09.00–12:30, 15.00–20.00 Giovedì 09.00–12:30, 15.00–20.00 Venerdì 09.00–12:30, 15.00–20.00 Sabato 09.00–12:30, 15.00–19.00 DomenicaChiuso
Affiliato
Studio Sangano Sas
P.zza Marco Matta, 5/2 10090 Sangano (TO)

2026 Tecnocasa Franchising S.p.A. - P. IVA 08365160152 - Via Monte Bianco 60/A 20089 Rozzano (MI). Ogni agenzia ha un proprio titolare ed è autonoma. Privacy policy | Policy utilizzo | Cookie policy